Каминная топка EcoKamin Дельта 800 R
73508bc2ba6c
Доставка в Пермь
Удобство оплаты
Почему звонить в Очаг уже сейчас?
- Единая цена по всей России
- Бесплатная доставка
- Понимаем любой бюджет
- Считаем ВСЕ варианты
- Инструкции и видео для Монтажа
- Доступно, Оперативно, Профессионально
- Более 2 000 монтажей за 17 лет
Примеры работ #Степан_Знает
Видео галерея
Описание
Характеристики
Общие
Производитель:
Страна-производитель:
Россия
Остекление:
Материал корпуса:
Материал топки:
- Шамот
Конструкция топки:
Боковое стекло:
Справа
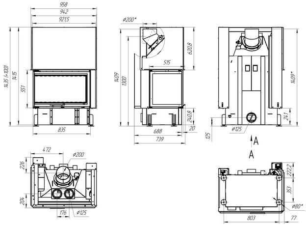
Размеры
Диаметр дымохода:
200 мм
Общая ширина:
905 мм
Общая глубина:
634 мм
Общая высота:
1495 мм
Общий вес:
386 кг
Высота рамки:
508 мм
Ширина рамки:
814 мм
Производительность
Мощность:
16 кВт
КПД:
80%
Площадь отопления:
160 м²
Объем отопления:
400 м³
Использование для отопления:












